Neubauvorhaben Mettmann - Metzkausen 1 Familienhaus / Villa
Bauvorhaben: Hier entstehen in individueller Planung ein Einfamilienhaus mit ca. 150 - 200 m² Wohnfläche in gehobener Bauausführung.
Der Interessent stimmt mit dem erfahrenen Architekten seine Wunschplanung ab. Bei dem namenhaften Bauträger planen Sie Ihr Traumhaus.Eine seltene Gelegenheit Ihre Traumvilla zu erstellen.
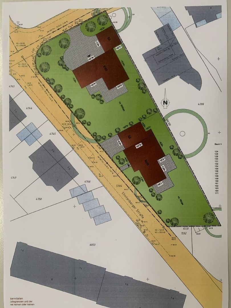
Grundstücksgröße: insgesamt ca. 450 m²
Etagenzahl: 2
Zimmer: 4 bis 6
Die reine Wohnstraße Gartenkampsweg / Stintenbergerstraße befindet sich in verkehrsberuhigter Wohnlage im beliebten Ortsteil Mettmann Metzkausen. Die Nachbarbebauung besteht überwiegend in gewachsener Wohnlage, Bebauung mit Einfamilienhäusern bzw. Eigentumswohnungen in Gebäuden bis zu 2 ½ geschossiger Bauweise. Ebenso hervorzuheben ist die gute Infrastruktur und die Verkehrsanbindung dieser Wohngegend.
Kaufpreise: Je nach eigenen Ausführungswünschen
750.000 EUR bis 900.000 EUR
- Im Alleinauftrag -
Haftung: Wir bemühen uns alle Angaben so vollständig wie möglich zu machen. Da wir uns hierbei auf die Angaben der jeweiligen Verkäufer verlassen müssen, können wir keine persönliche Haftung übernehmen.
Courtage: Die anteilige, für den Käufer anfallende, Nachweis- bzw.Vermittlungsgebühr beträgt 3,57 % inkl. der gesetzlichen MwSt.des Kaufpreises.
Finanzierung: Durch laufende Zusammenarbeit mit namhaften Finanzierungs-instituten sind wir stets in der Lage, Ihnen eine auf Ihre persönlichen Verhältnisse abgestimmte Finanzierung zu ermöglichen. Für die zusätzliche Finanzierungsbearbeitung wird von uns keine Kostenberechnung vorgenommen.




